Rif: IMMO-125146379
COSENZA
COSENZA | - zona Popilia - Vagliolise € 76.000- Appartamento
- Vendita
- 135 Mq
- 5 Vani
- 4 Camere
- 1 Bagni
- EPI: Non disp.
- Classe energetica: Non indicata
- Descrizione
- Dettaglio immobile
- Consistenze
- Mappa
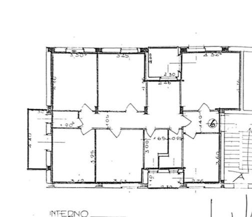
- Planimetrie
L'unità immobiliare si colloca nella zona di Via Popilia, all'interno di un comparto residenziale caratterizzato da alberature e spazi comuni dotati di panchine. La superficie complessiva di circa 135 mq, comprensiva di due balconi e di un terrazzino, offre una distribuzione interna particolarmente ampia e funzionale. L'ingresso conduce a un soggiorno di generose dimensioni, affiancato da una cucina abitabile; la zona notte si articola in quattro camere da letto, integrate da un servizio igienico, da una lavanderia e da un ripostiglio, con possibilità di ricavare un secondo bagno. Gli affacci aperti assicurano una luminosità uniforme, accentuata dalla presenza degli spazi esterni. L'immobile richiede interventi di ristrutturazione, circostanza che consente di modellare gli ambienti secondo esigenze personalizzate. La proprietà comprende una cantina posta al piano terra, mentre l'area circostante garantisce un'ampia disponibilità di parcheggi. L'insieme restituisce un'abitazione di notevole ampiezza, idonea a nuclei familiari che ricercano spazi comodi e un contesto dotato di verde diffuso.
Contratto Vendita
Rif IMMO-125146379
Prezzo € 76.000
Provincia Cosenza
Comune Cosenza
Zona - Zona Popilia - Vagliolise
Indirizzo Via Popilia 139/A">
Vani 5
Camere 4
Bagni 1
Classe energetica
Non indicata
Piano 3 / 4
Condizioni da ristrutturare
Cucina abitabile
| Descrizione | Superficie | Sup. comm. |
|---|---|---|
| Principali | ||
| Immobile - 3° piano | 135 Mq | 135 Mqc |
| Totale | 135 Mqc | |
Zoom della mappa
Apri con:
Apple Maps
Google Maps
Waze
Apri la mappa







